Bạn đang chuẩn bị xây dựng hoặc sửa chữa nhà tại phường Phú Thuận nhưng còn băn khoăn về thủ tục pháp lý? Việc xin giấy phép xây dựng phường Phú Thuận, TP.HCM là bước quan trọng để công trình được phép thi công và tuân thủ quy hoạch. Bản Đồ Số Sài Gòn cung cấp dịch vụ tư vấn trọn gói, hỗ trợ hồ sơ đầy đủ, nhanh chóng và chính xác. Hãy cùng tìm hiểu cách xin giấy phép xây dựng hiệu quả tại Phường Phú Thuận.
Căn cứ pháp lý xin giấy phép xây dựng phường Phú Thuận, TP.HCM
Việc xin giấy phép xây dựng phải tuân thủ các văn bản pháp luật hiện hành nhằm đảm bảo tính hợp pháp, an toàn và phù hợp quy hoạch. Dưới đây là những căn cứ pháp lý quan trọng:
Luật Xây dựng 2014 và Luật sửa đổi 2020
Luật Xây dựng 2014 (số 50/2014/QH13) là văn bản gốc quy định quyền và nghĩa vụ của các chủ đầu tư, cơ quan quản lý trong lĩnh vực xây dựng, bao gồm:
• Điều kiện cấp giấy phép xây dựng
• Hồ sơ, thủ tục và trách nhiệm của các bên liên quan
• Quy định về các công trình xây dựng mới, cải tạo, sửa chữa, nâng tầng.
Luật sửa đổi, bổ sung một số điều 2020 (số 62/2020/QH14) cập nhật một số quy định về quản lý xây dựng, rút ngắn thời gian thẩm định hồ sơ và nâng cao trách nhiệm cơ quan cấp phép.

Nghị định 15/2021/NĐ-CP và Nghị định 16/2022/NĐ-CP
Nghị định 15/2021/NĐ-CP hướng dẫn chi tiết một số nội dung về quản lý dự án đầu tư xây dựng, bao gồm:
• Trình tự, thủ tục đầu tư xây dựng
• Thẩm quyền phê duyệt và cấp phép
• Điều kiện an toàn công trình và bảo vệ môi trường.
Nghị định 16/2022/NĐ-CP quy định xử phạt vi phạm hành chính trong lĩnh vực xây dựng, giúp người dân và chủ đầu tư hiểu rõ rủi ro nếu xây dựng không phép hoặc sai quy hoạch.
Thông tư 15/2016/TT-BXD
Thông tư này hướng dẫn cấp giấy phép xây dựng nhà ở và công trình dân dụng, bao gồm:
• Hồ sơ xin giấy phép xây dựng chuẩn theo quy định
• Thẩm quyền cơ quan cấp phép
• Thời hạn giải quyết hồ sơ
• Trách nhiệm của chủ đầu tư và tổ chức tư vấn thiết kế.

Quyết định & Nghị quyết của UBND TP.HCM
• UBND TP.HCM ban hành các quyết định, nghị quyết hướng dẫn về quy hoạch, chỉ giới đường đỏ, mật độ xây dựng, chiều cao tối đa cho từng khu vực, phường, trong đó có Phường Phú Thuận.
• Khi xin giấy phép xây dựng, hồ sơ và bản vẽ thiết kế phải tuân thủ các quy định này, đảm bảo công trình phù hợp quy hoạch đô thị và không vi phạm các chỉ tiêu xây dựng của thành phố.
>>>> Xem thêm: Đơn vị chuyên cung cấp dịch vụ trọn gói trong lĩnh vực nhà đất và xây dựng TPHCM
Khi nào cần xin giấy phép xây dựng phường Phú Thuận, TP.HCM?
Việc xin giấy phép xây dựng là bắt buộc để đảm bảo công trình hợp pháp, an toàn và phù hợp quy hoạch tại phường Phú Thuận. Hiểu rõ các trường hợp cần và không cần xin phép sẽ giúp tránh rủi ro, xử phạt và tiết kiệm thời gian thi công.
Xây mới nhà ở, biệt thự, công trình dân dụng
Mọi công trình nhà ở, biệt thự, căn hộ riêng lẻ hoặc các công trình dân dụng khác đều phải xin giấy phép trước khi khởi công. Hồ sơ bao gồm bản vẽ thiết kế, sơ đồ vị trí và giấy tờ chứng minh quyền sử dụng đất. Xây dựng không phép có thể dẫn đến xử phạt, đình chỉ thi công hoặc buộc tháo dỡ.

Cải tạo, sửa chữa thay đổi kết cấu hoặc mặt ngoài
Nếu việc cải tạo, sửa chữa thay đổi kết cấu chịu lực hoặc mặt ngoài công trình, bạn cũng phải xin phép. Ví dụ: thay cột, dầm, vách chịu lực, mở rộng mặt tiền hay thay đổi hình dáng bên ngoài. Điều này đảm bảo công trình vẫn an toàn và không ảnh hưởng đến các nhà liền kề.
Nâng tầng, nâng mái, xây tum hoặc tầng hầm
Những hạng mục như nâng tầng, nâng mái, xây tum hay tầng hầm đều bắt buộc phải xin giấy phép vì ảnh hưởng trực tiếp đến kết cấu tổng thể của công trình, đồng thời phải tuân thủ chiều cao và mật độ xây dựng theo quy hoạch của phường.
Trường hợp không cần giấy phép
– Sửa chữa nhỏ bên trong công trình, không thay đổi kết cấu chịu lực (ví dụ: sơn sửa tường, lát sàn, thay cửa, cải tạo nội thất).
– Công trình tạm, không cố định lâu dài và không vi phạm quy hoạch.
>>>> Xem thêm: Đơn vị xin giấy phép xây dựng quận 7, TP.HCM uy tín nhất
Thủ tục xin giấy phép xây dựng phường Phú Thuận, TP.HCM
Để xin giấy phép xây dựng phường Phú Thuận, TP.HCM nhanh chóng và đúng quy định, chủ đầu tư cần thực hiện theo quy trình chuẩn như sau:
Hồ sơ xin giấy phép xây dựng
Để xin giấy phép xây dựng, chủ đầu tư cần chuẩn bị các giấy tờ cơ bản sau:
– Đơn đề nghị cấp giấy phép xây dựng theo mẫu.
– Sổ đỏ / sổ hồng hợp pháp chứng minh quyền sử dụng đất.
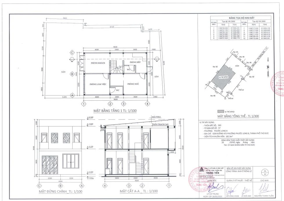
– Bản vẽ thiết kế: mặt bằng, mặt đứng, mặt cắt, sơ đồ vị trí, hệ thống điện – nước.
– Cam kết an toàn công trình liền kề (nếu có tầng hầm hoặc công trình xây chen).
– Hồ sơ bổ sung theo yêu cầu UBND phường/quận (nếu có).
→ Lưu ý: Chuẩn bị hồ sơ đầy đủ giúp giảm rủi ro bị trả lại và rút ngắn thời gian cấp phép.

Quy trình xin giấy phép xây dựng
1. Chuẩn bị hồ sơ đầy đủ
2. Nộp hồ sơ tại UBND phường Phú Thuận / Phòng Quản lý đô thị quận 7
3. Thẩm định hồ sơ: kiểm tra bản vẽ, quyền sử dụng đất, quy hoạch
4. Nhận kết quả:
• Nhà ở riêng lẻ: ~15 ngày làm việc
• Công trình phức tạp: có thể kéo dài đến 30 ngày
5. Lệ phí và thời gian
• Nhà ở riêng lẻ: ~75.000 đồng
• Công trình khác: ~150.000 đồng
• Cải tạo/sửa chữa: lệ phí tùy trường hợp
• Thời gian xử lý: 15 – 30 ngày

>>>> Xem thêm: Xin giấy phép xây dựng phường Tân Thuận, TP.HCM uy tín
Hỗ trợ xin giấy phép xây dựng Phường Phú Thuận, TP.HCM trọn gói
Xin giấy phép xây dựng phường Phú Thuận, TP.HCM đòi hỏi hồ sơ đầy đủ, đúng quy chuẩn và tuân thủ các quy định pháp luật. Thủ tục phức tạp, nhiều bước kiểm tra và yêu cầu kỹ thuật khiến chủ đầu tư dễ gặp khó khăn. Bản Đồ Số Sài Gòn cung cấp dịch vụ hỗ trợ xin giấy phép xây dựng trọn gói, giúp chủ đầu tư thực hiện nhanh chóng, an toàn và hợp pháp.
Quy trình thực hiện chuyên nghiệp
1. Tư vấn pháp lý và kỹ thuật: đánh giá quyền sử dụng đất, quy hoạch, hướng dẫn loại giấy phép phù hợp với từng công trình.
2. Chuẩn bị hồ sơ đầy đủ: lập đơn xin phép, bản vẽ kỹ thuật, sơ đồ vị trí, hồ sơ cải tạo hoặc nâng tầng, cam kết an toàn công trình liền kề.
3. Nộp hồ sơ và theo dõi tiến trình: đại diện khách hàng nộp hồ sơ tại UBND phường Phú Thuận, theo dõi thẩm định và thông báo kịp thời khi có yêu cầu bổ sung.
4. Nhận giấy phép và bàn giao: hỗ trợ nhận giấy phép đúng thời hạn và hướng dẫn lưu trữ, bảo quản hồ sơ.

Cam kết chất lượng dịch vụ
♦ Hồ sơ chính xác, hợp lệ: giảm rủi ro bị trả lại và đảm bảo thi công đúng pháp luật.
♦ Thời gian nhanh chóng: xử lý hồ sơ từ 15 – 30 ngày tùy loại công trình.
♦ Chi phí minh bạch: rõ ràng từ đầu, không phát sinh ngoài thỏa thuận.
♦ Hỗ trợ tận tâm, uy tín: đội ngũ am hiểu pháp luật, quy hoạch, bản vẽ kỹ thuật và thủ tục hành chính.

Với kinh nghiệm và đội ngũ chuyên viên am hiểu pháp lý, Bản Đồ Số Sài Gòn sẵn sàng hỗ trợ bạn từ tư vấn đến hoàn tất hồ sơ trọn gói, giúp tiết kiệm thời gian và công sức. Liên hệ ngay để được tư vấn chi tiết và hỗ trợ xin giấy phép xây dựng phường Phú Thuận, TP.HCM một cách nhanh chóng, chuyên nghiệp.
BẢN ĐỒ SỐ SÀI GÒN
Giấy Phép Kinh Doanh: 0318055956
Chứng Chỉ Thiết Kế, XPXD: HCM-00076991
Chứng Chỉ Đo Đạc Bản Đồ: 00582
Đại Diện Pháp Luật: Ông Đỗ Công Hoan
Địa chỉ: 278 Nguyễn Văn Tăng, P. Long Bình, TP. HCM
Văn phòng 1: 430 Nguyễn Xiển, P. Long Bình, TP.HCM
Văn phòng 2: 47 Dương Định Hội, P. Phước Long, TP.HCM
Văn phòng 3: 51 Nguyễn Thị Thập, P. Tân Mỹ, TP. HCM
Hotline: Mr. Hoan - 0977.960.616 (Tư vấn 24/7)
Email: bandososaigon@gmail.com
Website: phaplynhadathcm.vn
Tìm kiếm có liên quan
xin giấy phép xây dựng quận 7, Tp.HCM
xin giấy phép xây dựng phường Tân Thuận
xin giấy phép xây dựng phường Phú Thuận
xin giấy phép xây dựng phường Tân Mỹ
